石家庄路翔铁路中等专业学校

钢轨为什么设计成工字型,而且要做那么高

394

提起钢轨,大家或多或少都有所了解,对于铁路人来说,钢轨更是每天都要“打交道”的“好哥们”,但要问起来钢轨为什么设计成工字型,恐怕没有多少人能完整回答上来。今天我们简单来科普一下这个问题。


图片


1、首先要梳理的问题是,钢轨断面为啥是工字型?


按照我国标准,在每个轮轨接触面上,车轮会将10到12.5吨的重量压到钢轨顶面(也就是**25吨轴重)。这么大的重量不能就用个方棍直接原样把接触面压力传到钢轨与轨枕的接触面,不然就会把轨枕压烂了,得把轨底做大,减小轨底接触面压力。


图片


做个简单的理论计算:接触面重力为满载半轴重(取11.5吨),轨道采用60轨,接触面宽度70毫米,长度算100毫米,则接触面压力为:


P=mg/A=11500kg×9.8N/kg/(0.07m×0.1m)=16,100,000Pa=16.1MPa


当然100毫米的接触长度太长,一般应该是50到100毫米,而新轨一般也就50毫米能顶住车轮,也就是每个接触面需要承担16到40个兆帕的压力。另外要注意,轨道本身也会因为车辆产生弹性形变,也就是运行时接触面的面积是动态变化的,所以压力载荷也在不断变化。


图片

钢轨原料,就是方棍。其他形状的钢棍也可以,只要热轧入料口做好配型就行。上窄下宽的结构有很多,最常见的是梯形。但是梯形的底腰夹角太大则则没法装扣件,顶腰夹角太大则安置不了轮缘,故而不适合作为轨道断面,还得优化。


图片


那么继续优化,采用各夹角皆为直角的凸字形断面可不可以呢?其实是可以的,但是底部过厚会导致紧固件太大太长,顶部过宽则会导致钢轨连接处的螺杆过长,连接件还鼓出一大堆来。而且中部纯承担垂直重力的部分其实强度够大用不着那么宽,为了节约材料,可以做一个缩颈处理。


图片


再对凸字形断面的几何形状进行优化,即中部缩颈,好了,包含铁路、建筑等等各种大型承重结构当中,最常用的工字面就出来了。上部一坨即为轨头,中间收腰为轨腰,下面的近似平板为轨底。为了保证各个伸出的结构不轻易弯曲,轨头、轨底的略微做了一点梯形处理,并适度圆角,加强轮廓变形部位的强度。而且工字型截面非常适合采用各种夹具,直接夹住轨头就可以很方便的转移运输,不像上面几个,用起来不太方便。


图片


上图为株洲高铁工务段用起重臂吊起钢轨的照片,可以看到钢轨是直接用个剪刀型夹具夹住的。这种夹具吊起状态下自然闭合,夹起的东西越重则下步开口越小。另外,起重臂也可以视为工字型断面。


这个几何形状的优化步骤,英国人19世纪就摸索出来了,甚至可能只是脑子里里灵光一闪。近似的推导优化可以在大学工科的专业基础课程《材料力学》里看到。后来的一两个世纪里,虽然有无数人声称发明了更好的钢轨几何形状,但是要么就是工字型演变,要么根本不实用,故而可以基本肯定这已经是钢轨几何形状的**解。


图片

钢轨几何形状演变


图片
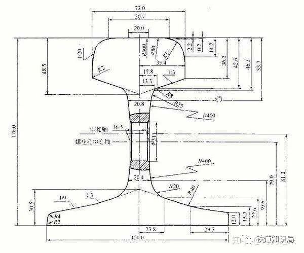
各种标号钢轨尺寸

图片
标准60轨断面图

要连续加工这种顺向高度一致的工件,如果用钢水浇筑直接成型,没有那么大且略微复杂的封闭模具;浇筑成方棍,再用高能耗还高废料的车铣刨磨那套则经济上太不划算,毕竟又不是什么太复杂的几何形状。所以,一般钢轨的批量制造就直接采用热轧法解决,多个轧辊把加热到红亮的方棍逐步轧制成工字型,再热处理消除下内应力,调整下钢材晶相就行了。但是热轧法会有个问题,即加工完毕散热时,梯形或者凸字形断面各处散热速度不是那么太平均,而工字型则要好不少。


图片
图片
图片
包钢钢轨生产线新闻报道图片


2、材料用什么好?


很多人不知道这样两件事:


第一件事。一根25长的标准钢轨,如果只用两个物件架住,那么这玩意**的弹性就显露出来了。如果是几百米的长轨,没有多点固定的前提下弹性形变更大,软得简直就像麻蛇一样。小时候在铁路边没少踩着工务换下来的钢轨玩,上下晃动幅度至少也有一二十公分,而晃动完又恢复原状,心想这玩意了不得呢,毕竟是承重的。


图片


第二件事。车轮在轨道上压过钢轨时,钢轨连同轨枕会被狠狠地压低,但是车轮离开以后又会回弹,这一点在有砟线路经过货车时特别明显。


既然接触面要承受极大压力,还有各种方向上的动载荷,还能弹性形变,各种非金属材料基本排除。金属里自古以来最常用的结构骨料无非就是钢铁,毕竟成本与性能达到平衡,那就只能在这里面选。各种铁料似乎都有材料强度弹性不足导致不易加工容易崩裂的特点,那就只剩钢材。所以,铁轨这个描述其实不是很准确,毕竟各种铁料的机械性能早就不能满足铁路使用,只能算一个约定俗成的说法。参考钢轨材料牌号,每米不超过30公斤的轻轨一般用Q235,每米最低35公斤的重轨一般采用U71Mn及其衍生出的各种钢材,全是钢料牌号,没有生铁熟铁甚至球墨铸铁什么事。


图片
运输中的长钢轨,钢轨随着铁路弯曲而弯曲


3、重量问题?


建国后头30年的新建铁路还是正线43轨跟侧线38轨,也就是43kg/m跟38kg/m。但是现在的新建铁路一般就直接50或者60轨了,反正钢铁生产能力管够,毕竟世界第一粗钢生产国。另外也是因为自建国至今车辆重量逐步增大的结果,车重上来了,其承重件也只能跟着变大,不然强度上会有问题。


图片


钢轨本身是一种消耗品,随着车辆不断驶过,轨顶会磨损,会跑偏形成碾压层,基本上能坚持两三年就不错了。而且以前用25米轨的时候,接头处需要夹板固定,还需要春秋两季更换,以保证轨缝不至于过大,但是还是有各种十几个毫米的大轨缝,车轮一过震天响。现在的长轨为了保证长期使用,一般是预应力轨道,即铺设时预先拉紧拉长那么一丢丢,再用轨道扣件挨个压紧,这样冷热变换时不会产生大的形变影响轨道精度。因为需要加载预应力的关系,钢轨只能选择更大一点的以承受更多预应力,所以干脆就用50或者60轨了。


图片


上图是轨顶磨损、偏移及剥离,可以看到内轨的倒角已经没有了。另外这扣件够古老的。图源@Örlick。


4、曲线上的横向力矩钢轨能承受吗?


按照铁路的修建原则,曲线上会加宽轨距,即加宽,以及布置内外轨高低差,即超高。再加上曲线半径,可以得出一个横向受力平衡的通过速度,如果速度过高则外轨有横向压力(向心力不足),即欠超高,如果速度过低则内轨有横向压力(离心力不足),即过超高。


欠超高的极端是车速过大脱轨,但是这么多超速过曲线再脱轨的事故里面,几乎没有听到哪个脱轨导致轨头或者轨底崩掉,要么接头处或者钢轨紧固件崩掉,要么钢轨就整根崩断,要么就是车辆轮缘碾上外轨顶,或者内轮升起侧翻脱轨。过超高的极端是车停在曲线上,但是钢轨本身强度足够,也没听说因为那么一点轻微的倾斜导致轨头坏掉的。


图片


上面的铁路技规的里的曲线标志牌,上面三个数据单位是米,下面俩数据单位毫米。上面这个标志牌可以用一个经验公式推断平衡通过速度,这个公式是v^2=grl/h,v是速度,g是重力加速度,r是曲线半径,l是包含加宽在内的轨距,h是超高。这么一算,350米半径的小曲线通过速度就只有55km/h左右,而350米正好是12号道岔的侧向曲线半径,一般还没有超高,所以侧向限速也只是45km/h,实际司机只开到40左右就不加速了。


综上所述,钢轨的工字型截面从19世纪出现铁路开始就是**解,其材料基本限定为钢材。车重增大以及钢轨铺设方式的改变,导致钢轨必须随之增大,曲线上钢轨的受力基本上不足以让钢轨大范围损坏。


来源:公众号“铁道知识局”;旨在分享、学习,如有侵权等情况请及时联系我们修改、删除school@sjzluxiang.com谢谢!

推荐文章